和歌山市のその他賃貸事務所!|ピタットハウス和歌山駅前店 株式会社スマートホーム

PC
ピタットハウススマートホーム
TOPページ
賃貸物件検索
和歌山市の賃貸情報一覧
シャインビル・フクシマ 和歌山市のその他賃貸事務所


※このページの情報は広告情報ではありません。過去から現在までピタットハウス和歌山駅前店 株式会社スマートホームのホームぺージに掲載されていた物件情報を元に生成した参考情報です。

物件概要

交通機関 JR紀勢本線 和歌山市駅 徒歩2分
南海線 和歌山市 徒歩2分
南海和歌山港線 和歌山市 徒歩2分
住所 和歌山県和歌山市元博労町
種別 / 構造 事務所 / S造(鉄骨造)
築年数 1998年12月 建物階建 6階 間取り一例 その他
設備・条件
の一例
エレベーター / 

学区情報

小学校区 和歌山市立城北小学校
(和歌山県和歌山市)
中学校区 伏虎中学校
(和歌山県和歌山市)
※各種情報と差異がある場合は現況優先となります
※物件情報の学区情報について
当サイト物件情報に記載されております通学区域(学区)情報は、国土数値情報ダウンロードサービスが提供する小学校区データ【2021年度】及び中学校区データ【2021年度】を元に加工したものですので、記載情報が現在の学区域と異なる場合がございます。国土数値情報ダウンロードサービスのWEBサイト上で記述通り、データは必ずしも正確とは言えません。また、通学区域(学区)は毎年見直しの対象となりますので、そちらを踏まえ学区情報は参考としてご活用下さい。

こちらの物件の空室状況

間取図 部屋番号 賃料
共益費/管理費
敷金
礼金
間取り
専有面積
お気に入り 物件詳細
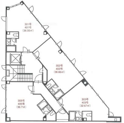
間取り画像
403
6.6万円
16,500円 -
6.6万円
6.6万円
その他
32.67m2
お気に入り 詳細を見る

この物件に似た物件をチェック!

  • 賃貸事務所 6.3855万円

    和歌山市駅 徒歩5分

    その他(29.79u)

  • 賃貸事務所 6.3855万円

    和歌山市駅 徒歩5分

    その他(29.79u)

    2021年5月末空き予定

  • 賃貸事務所 6.16万円

    和歌山市駅 徒歩16分

    その他(26.45u)

    約8坪

  • 賃貸事務所 5.61万円

    和歌山市駅 徒歩16分

    その他(28.00u)

    約8.47坪


閲覧した物件の履歴

閲覧した物件の一覧を見る

こだわり条件から和歌山市の物件を探す

最近検索した条件一覧


ホームページを見てと伝えてください
ピタットハウス和歌山駅前店
〒640-8331
和歌山県和歌山市美園町5丁目3番地1
TEL : 073-488-8880
お問合わせNO:ACI003461203

空室情報の確認や詳細を知りたい方
お問合せはお気軽にお問合せください!


▲ページのTOPへ戻る

※ピタットハウスの加盟店は独立自営であり、 各店舗の責任のもと運営をしております。