和歌山市 それ以上 賃貸(アパート・マンション)物件一覧|和歌山の賃貸はピタットハウス スマートホーム

PC
ピタットハウススマートホーム

和歌山市 それ以上 賃貸物件一覧

棟数 277 件 (総部屋数:507 件)  条件に合致した建物数と総物件数として募集中の部屋の総数を表示しています。
一つの建物に複数の募集中の物件があったとしても1件としてカウントしています。
表示件数 

この検索条件を保存

ハピネス六番丁BLG.

ハピネス六番丁BLG. 外観写真
所在地 和歌山県和歌山市六番丁
交通 JR紀勢本線 和歌山駅  徒歩17分
物件種別 事務所 築年月 1991年3月
階数/構造 8階建/S造(鉄骨造)
約15.55坪 事務所
間取図 部屋番号 賃料
共益費/管理費
敷金
礼金
間取り
専有面積
お気に入り 物件詳細
間取り画像
2F
49.5万円
0ヶ月
0ヶ月
その他
159.04m2
お気に入り 詳細を見る
間取り画像
NEW
3FB
15.4万円
0ヶ月
0ヶ月
その他
51.43m2
お気に入り 詳細を見る

和歌山市狐島事務所付倉庫

和歌山市狐島事務所付倉庫 外観写真
所在地 和歌山県和歌山市狐島
交通 南海加太線 東松江駅  徒歩12分
物件種別 その他 築年月 1991年8月
階数/構造 2階建/S造(鉄骨造)
倉庫 約99.62坪
間取図 部屋番号 賃料
共益費/管理費
敷金
礼金
間取り
専有面積
お気に入り 物件詳細
間取り画像
101
29.7万円
4,620円
3ヶ月
0ヶ月
その他
329.34m2
お気に入り 詳細を見る

厚仁ビル

厚仁ビル 外観写真
所在地 和歌山県和歌山市杉ノ馬場2丁目
交通 JR紀勢本線 和歌山市駅  徒歩2分
物件種別 テナント 築年月 1968年2月
階数/構造 3階建/RC造(鉄筋コンクリート造)
間取図 部屋番号 賃料
共益費/管理費
敷金
礼金
間取り
専有面積
お気に入り 物件詳細
間取り画像
205
4.4万円
3ヶ月
0ヶ月
その他
24.8m2
お気に入り 詳細を見る
間取り画像
305
4.4万円
3ヶ月
0ヶ月
その他
24.8m2
お気に入り 詳細を見る

第2MYビル

第2MYビル 外観写真
所在地 和歌山県和歌山市十番丁
交通 JR紀勢本線 和歌山市駅  徒歩14分
物件種別 テナント 築年月 1989年5月
階数/構造 7階建/S造(鉄骨造)
間取図 部屋番号 賃料
共益費/管理費
敷金
礼金
間取り
専有面積
お気に入り 物件詳細
間取り画像
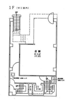
1F
17.6万円
22,000円
3ヶ月
2ヶ月
その他
57.3m2
お気に入り 詳細を見る
間取り画像
2B
8.58万円
11,000円
3ヶ月
3ヶ月
その他
31.95m2
お気に入り 詳細を見る
間取り画像
2A
13.42万円
11,000円
3ヶ月
3ヶ月
その他
50.16m2
お気に入り 詳細を見る
間取り画像
3A
8.58万円
11,000円
3ヶ月
2ヶ月
その他
51.39m2
お気に入り 詳細を見る

和歌山市禰宜事務所付工場

和歌山市禰宜事務所付工場 外観写真
所在地 和歌山県和歌山市禰宜
交通 JR和歌山線 千旦駅  徒歩5分
物件種別 テナント 築年月 1992年6月
階数/構造 2階建/S造(鉄骨造)
間取図 部屋番号 賃料
共益費/管理費
敷金
礼金
間取り
専有面積
お気に入り 物件詳細
間取り画像
101
37.73万円
1,210円
3ヶ月
0ヶ月
その他
400m2
お気に入り 詳細を見る
間取り画像
102
24.475万円
1,210円
3ヶ月
0ヶ月
その他
319.96m2
お気に入り 詳細を見る
 

棟数 277 件 (総部屋数:507 件)  条件に合致した建物数と総物件数として募集中の部屋の総数を表示しています。
一つの建物に複数の募集中の物件があったとしても1件としてカウントしています。
表示件数 

和歌山市 それ以上 賃貸の物件をお探しですか?当社では掲載している物件以外にも多数物件情報をご用意しております!
和歌山市 それ以上 の物件一覧の中でご希望の物件が見つからない!もっと詳しく知りたい!とお考えの方、ぜひお気軽にお部屋探しサービスをご利用 ください!和歌山市 それ以上 関連の情報ならピタットハウス和歌山駅前店 株式会社スマートホームにお任せください!
▲ ページのTOPへ戻る

検索条件の変更

エリアで絞る
沿線で絞る
小学校から探す
中学校から探す
区域から探す
賃料
種別
間取り
面積
駅徒歩
築年数
新築・駐車場


◆ バス・トイレ・洗面所
◆ キッチン
◆ 住空間・採光
◆ 居室
◆ 建物設備・防犯
◆ 条件
◆ その他条件


閲覧した物件


※ピタットハウスの加盟店は独立自営であり、 各店舗の責任のもと運営をしております。