プチレジデンス 紀ノ川の賃貸テナント!|ピタットハウス和歌山駅前店 株式会社スマートホーム

ピタットハウススマートホーム
TOPページ
賃貸物件検索
和歌山市の賃貸情報一覧
プチレジデンス 紀ノ川の賃貸テナント

プチレジデンス  紀ノ川の賃貸テナント

賃料(坪単価) 77,000円(6,598円) 管理費(坪単価) ()
敷金 / 礼金 0ヶ月 / 0ヶ月 保証金 / 償却 14万円 / 7.7万円
所在階 / 階数 1階 / 3階 構造 RC造(鉄筋コンクリート造)
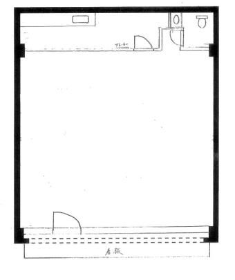
用途 / 面積 テナント / 38.61m2(11.67坪) 築年月 1988年4月
交通
南海線 「紀ノ川駅」 徒歩16分
南海加太線 「紀ノ川駅」 徒歩16分
JR紀勢本線 「紀和駅」 徒歩22分
所在地 和歌山県和歌山市楠見中 周辺MAP
※事業用物件は 賃料・共益費・管理費等が税別表記です
【建物外観】 外観 【間取】  【建物外観】 エントランス 【建物外観】 駐車場 【建物外観】 共有部分 【その他】 室内 【その他】 トイレ 【その他】 室内 【その他】 室内 【その他】 室内 【その他】 その他部屋・スペース 【その他】 その他 【その他】 洗面 【その他】 その他 【その他】 その他 【その他】 その他 【その他】 その他 【周辺】 和歌山市立楠見東小学校:779m 【周辺】 和歌山市立紀之川中学校:2745m 【周辺】 あわ保育園:322m 【周辺】 和歌山市河北サービスセンター:1507m 【周辺】 和歌山楠見中郵便局:177m 【周辺】 和歌山市民図書館:2524m
【建物外観】 外観
【間取】 
【建物外観】 エントランス
【建物外観】 駐車場
【建物外観】 共有部分
【その他】 室内
【その他】 トイレ
【その他】 室内
【その他】 室内
【その他】 室内
【その他】 その他部屋・スペース
【その他】 その他
【その他】 洗面
【その他】 その他
【その他】 その他
【その他】 その他
【その他】 その他
【周辺】 和歌山市立楠見東小学校:779m
【周辺】 和歌山市立紀之川中学校:2745m
【周辺】 あわ保育園:322m
【周辺】 和歌山市河北サービスセンター:1507m
【周辺】 和歌山楠見中郵便局:177m
【周辺】 和歌山市民図書館:2524m
  • 【建物外観】 外観
  • 【間取】 
  • 【建物外観】 エントランス
  • 【建物外観】 駐車場
  • 【建物外観】 共有部分
  • 【その他】 室内
  • 【その他】 トイレ
  • 【その他】 室内
  • 【その他】 室内
  • 【その他】 室内
  • 【その他】 その他部屋・スペース
  • 【その他】 その他
  • 【その他】 洗面
  • 【その他】 その他
  • 【その他】 その他
  • 【その他】 その他
  • 【その他】 その他
  • 【周辺】 和歌山市立楠見東小学校:779m
  • 【周辺】 和歌山市立紀之川中学校:2745m
  • 【周辺】 あわ保育園:322m
  • 【周辺】 和歌山市河北サービスセンター:1507m
  • 【周辺】 和歌山楠見中郵便局:177m
  • 【周辺】 和歌山市民図書館:2524m

【スタッフからのイチオシポイント!】プチレジデンス

理髪店跡飲食店は不可
和歌山県和歌山市楠見中【南海線 紀ノ川駅徒歩16分】にある賃貸テナントです。
1988年4月築の3階建てのテナントで、物件は3階建ての1階部分です。物件の広さは38.61m2です。
※物件のもっと詳しい内容や入居時期、諸条件のご相談など、ホームページには掲載が間に合わず載せきれていない情報もございます。
気になることが御座いましたらお気軽にメールにてお問い合わせください。
073-488-8880
ピタットハウス和歌山駅前店
お問い合わせNO:RHS-ACI34711062

物件詳細情報

現況 空家 入居可能日 即入居可
取引態様 媒介 契約態様 -
その他費用

設備詳細情報

用途 造作
天井高 エレベーター
業種
設備
  • 敷地内駐車場
  • 即入居可
条件・その他 ガス:プロパン
備 考 短期解約違約金 、 2年以内の解約の場合賃料1か月分 水道代、実費。
情報更新日:2025年11月08日 次回更新予定日:2025年11月22日
※各種情報と差異がある場合は現況優先となります

こちらの物件の空室状況

区画図 募集区画 賃料
共益費/管理費
敷金
礼金
専有面積 お気に入り 物件詳細
区画図
101
7.7万円
- -
0ヶ月
0ヶ月
38.61m2 お気に入り 詳細を見る
区画図
103
6.05万円
- -
11万円
0ヶ月
38.61m2 お気に入り 詳細を見る
073-488-8880
ピタットハウス和歌山駅前店
お問い合わせNO:RHS-ACI34711062

この物件に似た物件をチェック!

  • 賃貸テナント 7.7万円

    紀ノ川駅 徒歩17分

    その他(46.44u)

    来客用駐車場有り

  • 賃貸テナント 7.7万円

    紀ノ川駅 徒歩17分

    その他(48.60u)

    来客用駐車場有り

  • 賃貸テナント 7.81万円

    紀ノ川駅 徒歩6分

    その他(38.70u)

    来客用駐車場2台分

  • 賃貸テナント 7.81万円

    紀ノ川駅 徒歩6分

    その他(38.70u)

    来客用駐車場2台分


閲覧した物件の履歴

閲覧した物件の一覧を見る

こだわり条件から和歌山市の物件を探す

最近検索した条件一覧



気になったら今すぐ!カンタンお問合せ



お問合せ内容必須
【備考欄】
希望条件・来店希望日・その他質問がございましたらご記入ください。
お客様情報
お名前必須
メールアドレス必須
電話番号



※ご入力いただいたお客さまの個人情報は、「個人情報の取扱いについて」に基づき適正に取り扱います。必ずお読みになり、同意の上お問い合わせください。




※ご記入いただいたメールアドレス宛てに、お問合せ内容の確認メールをお送りいたします。
※Yahoo!メールなどのフリーメールをご利用の場合、迷惑メールフォルダに入る場合があります。
 迷惑メールのフォルダ・設定等をご確認下さい。
 


▲ページのTOPへ戻る


お問合せはこちら

ピタットハウス和歌山駅前店 073-488-8880

オーナー様へ

空室対策や相続問題などでお悩みのオーナー様はお気軽にご相談下さい。

当社について
  • ピタットハウス 和歌山駅前店
  • 〒640-8331
  • 和歌山市美園町5丁目3-1
  • 073-488-8880
  • (受付)10:00~19:00
  • ピタットハウス 吹上店
  • 〒640-8137
  • 和歌山市吹上2-4-58
  • 073-488-1234
  • (受付)10:00〜19:00
  • ピタットハウス 紀三井寺店
  • 〒641-0012
  • 和歌山県和歌山市紀三井寺863-33
  • 073-488-8887
  • (受付)10:00〜19:00
  • ピタットハウス 和歌山北店
  • 〒640-8443
  • 和歌山市延時147-23
  • 073-488-8899
  • (受付)10:00〜19:00


※ピタットハウスの加盟店は独立自営であり、 各店舗の責任のもと運営をしております。