和歌山中央通りビル 和歌山市の賃貸テナント!|ピタットハウス和歌山駅前店 株式会社スマートホーム

ピタットハウススマートホーム
TOPページ
賃貸物件検索
和歌山市の賃貸情報一覧
和歌山中央通りビル 和歌山市の賃貸テナント

和歌山中央通りビル  和歌山市の賃貸テナント

賃料(坪単価) 55,000円(3,854円) 管理費(坪単価) 22,000円(1,542円)
敷金 / 礼金 5ヶ月 / 2ヶ月 保証金 / 償却 0ヶ月 / -
所在階 / 階数 4階 / 7階 構造 SRC造(鉄骨鉄筋コンクリート造)
用途 / 面積 テナント / 47.2m2(14.27坪) 築年月 1976年1月
交通
JR紀勢本線 「和歌山市駅」 徒歩5分
南海線 「和歌山市駅」 徒歩5分
南海和歌山港線 「和歌山市駅」 徒歩5分
所在地 和歌山県和歌山市板屋町 周辺MAP
※事業用物件は 賃料・共益費・管理費等が税別表記です
【建物外観】 外観 【間取】  【周辺】 和歌山市立伏虎義務教育学校:362m 【周辺】 和歌山市立伏虎義務教育学校:362m 【周辺】 和歌山市役所:446m 【周辺】 和歌山湊北郵便局:524m 【周辺】 和歌山市民図書館:481m 【周辺】 和歌山県警察本部:1277m
【建物外観】 外観
【間取】 
【周辺】 和歌山市立伏虎義務教育学校:362m
【周辺】 和歌山市立伏虎義務教育学校:362m
【周辺】 和歌山市役所:446m
【周辺】 和歌山湊北郵便局:524m
【周辺】 和歌山市民図書館:481m
【周辺】 和歌山県警察本部:1277m
  • 【建物外観】 外観
  • 【間取】 
  • 【周辺】 和歌山市立伏虎義務教育学校:362m
  • 【周辺】 和歌山市立伏虎義務教育学校:362m
  • 【周辺】 和歌山市役所:446m
  • 【周辺】 和歌山湊北郵便局:524m
  • 【周辺】 和歌山市民図書館:481m
  • 【周辺】 和歌山県警察本部:1277m

【スタッフからのイチオシポイント!】和歌山中央通りビル

和歌山県和歌山市板屋町【JR紀勢本線 和歌山市駅徒歩5分】にある賃貸テナントです。
1976年1月築の7階建てのテナントで、物件は7階建ての4階部分です。物件の広さは47.2m2です。
※物件のもっと詳しい内容や入居時期、諸条件のご相談など、ホームページには掲載が間に合わず載せきれていない情報もございます。
気になることが御座いましたらお気軽にメールにてお問い合わせください。
073-488-8880
ピタットハウス和歌山駅前店
お問い合わせNO:RHS-ACI38202116

物件詳細情報

現況 入居可能日 即入居可
取引態様 媒介 契約態様 -
その他費用

設備詳細情報

用途 造作
天井高 エレベーター
業種
設備
  • エレベーター
  • 24時間緊急通報システム
  • 敷地内駐車場
  • 2F以上
条件・その他
備 考 -
情報更新日:2026年04月21日 次回更新予定日:2026年05月05日
※各種情報と差異がある場合は現況優先となります

こちらの物件の空室状況

区画図 募集区画 賃料
共益費/管理費
敷金
礼金
専有面積 お気に入り 物件詳細
区画図
2031
5.5万円
22,000円 -
5ヶ月
2ヶ月
41.16m2 お気に入り 詳細を見る
区画図
2032
9.9万円
33,000円 -
5ヶ月
2ヶ月
83.56m2 お気に入り 詳細を見る
区画図
207
4.51万円
15,400円 -
5ヶ月
2ヶ月
37.41m2 お気に入り 詳細を見る
区画図
3030
10.45万円
38,500円 -
5ヶ月
2ヶ月
88.52m2 お気に入り 詳細を見る
区画図
3040
7.7万円
27,500円 -
5ヶ月
2ヶ月
68.28m2 お気に入り 詳細を見る
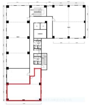
区画図
4011
5.5万円
22,000円 -
5ヶ月
2ヶ月
47.2m2 お気に入り 詳細を見る
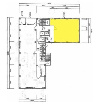
区画図
4032
16.5万円
55,000円 -
5ヶ月
2ヶ月
135m2 お気に入り 詳細を見る
区画図
4040
15.4万円
44,000円 -
5ヶ月
2ヶ月
130.78m2 お気に入り 詳細を見る
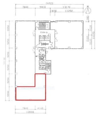
区画図
7040
7.7万円
27,500円 -
5ヶ月
2ヶ月
68.28m2 お気に入り 詳細を見る
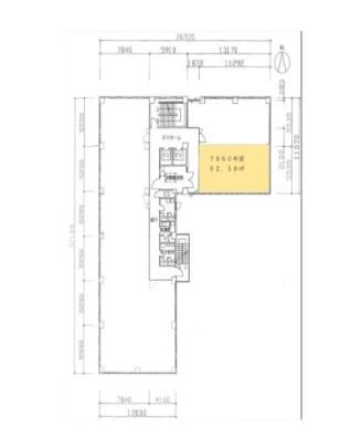
区画図
7050
6.6万円
27,500円 -
5ヶ月
2ヶ月
62.5m2 お気に入り 詳細を見る
073-488-8880
ピタットハウス和歌山駅前店
お問い合わせNO:RHS-ACI38202116

この物件に似た物件をチェック!

  • 賃貸テナント 5.5万円

    和歌山市駅 徒歩12分

    その他(46.32u)

    事務所使用可。店舗での場合出店業種ご相談ください。

  • 賃貸テナント 5.5万円

    和歌山市駅 徒歩12分

    その他(44.45u)

    事務所使用可。店舗での場合出店業種ご相談ください。

  • 賃貸テナント 5.5万円

    和歌山市駅 徒歩12分

    その他(51.17u)

    事務所使用可。店舗での場合出店業種ご相談ください。

  • 賃貸テナント 6.05万円

    和歌山市駅 徒歩15分

    その他(26.68u)


閲覧した物件の履歴

閲覧した物件の一覧を見る

最近検索した条件一覧



気になったら今すぐ!カンタンお問合せ



お問合せ内容必須
【備考欄】
希望条件・来店希望日・その他質問がございましたらご記入ください。
お客様情報
お名前必須
メールアドレス必須
電話番号



※ご入力いただいたお客さまの個人情報は、「個人情報の取扱いについて」に基づき適正に取り扱います。必ずお読みになり、同意の上お問い合わせください。




※ご記入いただいたメールアドレス宛てに、お問合せ内容の確認メールをお送りいたします。
※Yahoo!メールなどのフリーメールをご利用の場合、迷惑メールフォルダに入る場合があります。
 迷惑メールのフォルダ・設定等をご確認下さい。
 


▲ページのTOPへ戻る


お問合せはこちら

ピタットハウス和歌山駅前店 073-488-8880

オーナー様へ

空室対策や相続問題などでお悩みのオーナー様はお気軽にご相談下さい。

当社について
  • ピタットハウス 和歌山駅前店
  • 〒640-8331
  • 和歌山県和歌山市美園町4丁目89 スマートホームビル
  • 073-488-8880
  • (受付)10:00~19:00
  • ピタットハウス 吹上店
  • 〒640-8137
  • 和歌山市吹上2-4-58
  • 073-488-1234
  • (受付)10:00〜19:00
  • ピタットハウス 紀三井寺店
  • 〒641-0012
  • 和歌山県和歌山市紀三井寺863-33
  • 073-488-8887
  • (受付)10:00〜19:00
  • ピタットハウス 和歌山北店
  • 〒640-8443
  • 和歌山市延時147-23
  • 073-488-8899
  • (受付)10:00〜19:00


※ピタットハウスの加盟店は独立自営であり、 各店舗の責任のもと運営をしております。