和歌山の賃貸事務所!|ピタットハウス和歌山駅前店 株式会社スマートホーム

ピタットハウススマートホーム
TOPページ
賃貸物件検索
和歌山市の賃貸情報一覧
和歌山の賃貸事務所

  和歌山の賃貸事務所

賃料(坪単価) 567,958円(10,450円) 管理費(坪単価) 209,248円(3,850円)
敷金 / 礼金 12ヶ月 / 0ヶ月 保証金 / 償却 0ヶ月 / -
所在階 / 階数 9階 / 9階 構造 SRC造(鉄骨鉄筋コンクリート造)
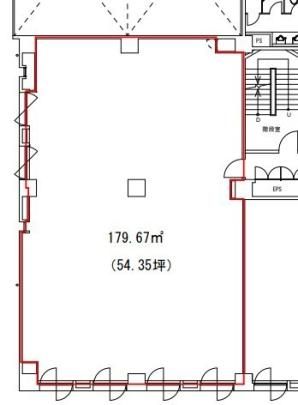
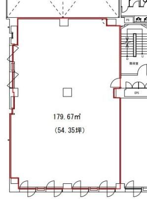
用途 / 面積 事務所 / 179.67m2(54.35坪) 築年月 1991年5月
交通
JR紀勢本線 「和歌山駅」 徒歩18分
JR阪和線 「和歌山駅」 徒歩18分
南海線 「和歌山市駅」 徒歩19分
所在地 和歌山県和歌山市三木町中ノ丁 周辺MAP
※事業用物件は 賃料・共益費・管理費等が税別表記です
【建物外観】 外観 【間取】  【建物外観】 エントランス 【建物外観】 駐車場 【建物外観】 共有部分 【建物外観】 外観 【周辺】 和歌山市役所:864m 【周辺】 和歌山新中通郵便局:651m 【周辺】 和歌山市民図書館:1615m 【周辺】 大新公園:659m 【周辺】 FORTE食品館:714m 【周辺】 セブンイレブン和歌山三木町店:67m
【建物外観】 外観
【間取】 
【建物外観】 エントランス
【建物外観】 駐車場
【建物外観】 共有部分
【建物外観】 外観
【周辺】 和歌山市役所:864m
【周辺】 和歌山新中通郵便局:651m
【周辺】 和歌山市民図書館:1615m
【周辺】 大新公園:659m
【周辺】 FORTE食品館:714m
【周辺】 セブンイレブン和歌山三木町店:67m
  • 【建物外観】 外観
  • 【間取】 
  • 【建物外観】 エントランス
  • 【建物外観】 駐車場
  • 【建物外観】 共有部分
  • 【建物外観】 外観
  • 【周辺】 和歌山市役所:864m
  • 【周辺】 和歌山新中通郵便局:651m
  • 【周辺】 和歌山市民図書館:1615m
  • 【周辺】 大新公園:659m
  • 【周辺】 FORTE食品館:714m
  • 【周辺】 セブンイレブン和歌山三木町店:67m

【スタッフからのイチオシポイント!】

和歌山県和歌山市三木町中ノ丁【JR紀勢本線 和歌山駅徒歩18分】にある賃貸事務所です。
1991年5月築の9階建ての事務所で、物件は9階建ての9階部分です。物件の広さは179.67m2です。
※物件のもっと詳しい内容や入居時期、諸条件のご相談など、ホームページには掲載が間に合わず載せきれていない情報もございます。
気になることが御座いましたらお気軽にメールにてお問い合わせください。
073-488-8880
ピタットハウス和歌山駅前店
お問い合わせNO:RHS-ACI42032733

物件詳細情報

現況 空家 入居可能日 即入居可
取引態様 媒介 契約態様 -
その他費用

設備詳細情報

用途 造作
天井高 エレベーター
業種
設備
  • 即入居可
  • 2F以上
条件・その他
備 考 -
情報更新日:2026年04月18日 次回更新予定日:2026年05月02日
※各種情報と差異がある場合は現況優先となります

こちらの物件の空室状況

区画図 募集区画 賃料
共益費/管理費
敷金
礼金
専有面積 お気に入り 物件詳細
区画図
2F 16.77
17.5247万円
64,565円 -
12ヶ月
0ヶ月
55.45m2 お気に入り 詳細を見る
区画図
9F 17.65
18.4443万円
67,953円 -
12ヶ月
0ヶ月
58.36m2 お気に入り 詳細を見る
区画図
9F 54.35
56.7958万円
209,248円 -
12ヶ月
0ヶ月
179.67m2 お気に入り 詳細を見る
073-488-8880
ピタットハウス和歌山駅前店
お問い合わせNO:RHS-ACI42032733

この物件に似た物件をチェック!

  • 賃貸事務所 56.8304万円

    和歌山市駅 徒歩6分

    その他(213.49u)

    中型乗用車33台収容(立体駐車場)

  • 賃貸事務所 56.705万円

    和歌山市駅 徒歩18分

    その他(170.42u)

    事務所 約51.55坪


閲覧した物件の履歴

閲覧した物件の一覧を見る

こだわり条件から和歌山市の物件を探す

最近検索した条件一覧



気になったら今すぐ!カンタンお問合せ



お問合せ内容必須
【備考欄】
希望条件・来店希望日・その他質問がございましたらご記入ください。
お客様情報
お名前必須
メールアドレス必須
電話番号



※ご入力いただいたお客さまの個人情報は、「個人情報の取扱いについて」に基づき適正に取り扱います。必ずお読みになり、同意の上お問い合わせください。




※ご記入いただいたメールアドレス宛てに、お問合せ内容の確認メールをお送りいたします。
※Yahoo!メールなどのフリーメールをご利用の場合、迷惑メールフォルダに入る場合があります。
 迷惑メールのフォルダ・設定等をご確認下さい。
 


▲ページのTOPへ戻る


お問合せはこちら

ピタットハウス和歌山駅前店 073-488-8880

オーナー様へ

空室対策や相続問題などでお悩みのオーナー様はお気軽にご相談下さい。

当社について
  • ピタットハウス 和歌山駅前店
  • 〒640-8331
  • 和歌山県和歌山市美園町4丁目89 スマートホームビル
  • 073-488-8880
  • (受付)10:00~19:00
  • ピタットハウス 吹上店
  • 〒640-8137
  • 和歌山市吹上2-4-58
  • 073-488-1234
  • (受付)10:00〜19:00
  • ピタットハウス 紀三井寺店
  • 〒641-0012
  • 和歌山県和歌山市紀三井寺863-33
  • 073-488-8887
  • (受付)10:00〜19:00
  • ピタットハウス 和歌山北店
  • 〒640-8443
  • 和歌山市延時147-23
  • 073-488-8899
  • (受付)10:00〜19:00


※ピタットハウスの加盟店は独立自営であり、 各店舗の責任のもと運営をしております。